Réf. : 2784


TRIANGLE D'OR / PROXIMITE PARC
230 000 €
NOUVEAU !
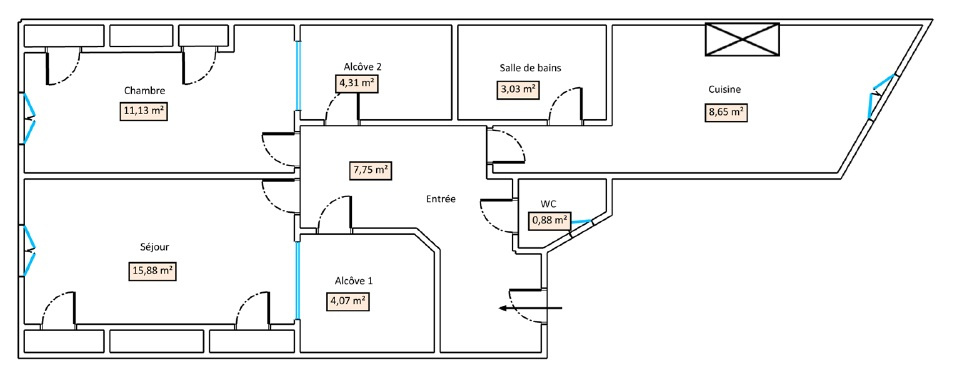
Rue Duquesne, l'Agence PEDRINI vous propose cet appartement T2 Bis de 56 m2 dans un bel immeuble ancien.
Au 3e étage avec ascenseur, il se compose d'une enrtée, d'un séjour avec alcove, d'une cuisine séparée, d'une chambre avec alcove, d'une salle de bains avec sanitaires.
Un cave complète ce bien;
Un appartement à proximité immédiate de toutes les commodités, qui nécessite des travaux pour lui redonner tout son potentiel.
Pour toute information et pour une visite, Pascal SAUZAY 06.09.04.54.99
Informations du bien
Informations énergétiques
Diagnostics énergétique

Indice d'émission de gaz à effet de serre

En bref
Lyon - 69006
Appartement
56 m²
2 pièce(s)
Ce bien m'intéresse
Remplissez le formulaire ci-dessous pour être contacté.
Informations financières
Informations copropriété
Coordonnées du bien
Vous recherchez
un bien similaire ?
Créez une alerte pour être averti dès qu'un bien correspondant à vos critères est disponible.
